Eladó Családi ház Érd - Érdi Duna-part közelében

93 m2Alapterület 2 + 1 Szoba
119 000 000 Ft Ár
394264Azonosító
További adatok

400 m2 Telek

Panoráma Kilátás

Újszerű Állapot

Tégla Szerkezet

22 m2 Erkély/terasz

Elektromos Fűtés

Dupla komfort Komfort

Saját garázs Parkolás

Tömegközlekedés

Amerikai konyhás

Van Kertkapcsolat

2023 Építés éve

Délkeleti Tájolás

Hitelkalkuláció – a részletekért kattintson valamelyik bank logójára!

Belépsz, és azonnal érzed: ez a ház átalakítja a hétköznapjaid

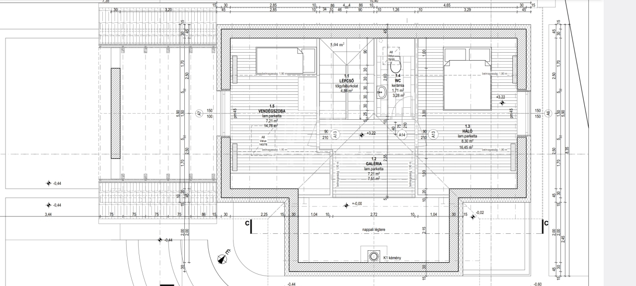
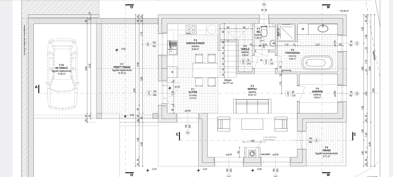
Belépsz, és minden pillanat megszólal: a terek, a fény és a részletek együtt mesélnek arról, hogy itt valóban otthon van. 2023-ban épült, kétszintes ház, ahol a dizájn és a funkcionalitás kéz a kézben jár, és minden apró döntés a mindennapok kényelmét szolgálja.

A 100 m²-es lakótér + 16 m²-es fedett terasz egy 400 m²-es telken terül el: két szoba és egy félszoba, külön fürdő és WC, duplakomfort, se felesleges sarkok, se kihasználatlan terek. A nappalihoz kapcsolódó 6 m²-es nyitott terasz nem díszlet, hanem a ház kinyílása, ahol a panoráma és a csend egyszerre ad levegőt a mindennapoknak.

A műszaki tartalom nemcsak modern, hanem tudatosan felépített rendszer. Az 5 kW-os napelemnek köszönhetően az elektromos fűtés és a helyiségenként szabályozható padlófűtés rendkívül alacsony fenntartási költség mellett biztosít egyenletes, kellemes hőérzetet az egész lakásban.
A komfort az igényekhez igazítható, az inverteres klímák tovább finomhangolják a hőmérsékletet minden helyiségben.
Az „A” energetikai besorolás és a korszerű hőszigetelés hosszú távon kiszámítható rezsit és stabil értéket jelent.

A belső tér letisztult, mégis karakteres: tömör fa nyílászárók, kandalló kialakításának lehetősége, elektromos redőny és riasztórendszer kiépített vezetékezéssel. Az önálló garázs biztosítja a kényelmes parkolást és a praktikus tárolást, így minden nap egyszerű és rendezett marad.

A lokáció valódi értéke az egyensúlyban rejlik: a Duna-part 12 perc sétára, de eközben gyorsan elérhető Érd központja is. Itt nem kell kompromisszumot kötni a nyugalom és a praktikum között.

Ez a ház nem próbál többnek látszani, mint ami, mégis minden részletében azonnal értéket ad. Nem díszít, hanem működik, a terek, a technológia és a design együtt teremtenek élhető, szerethető otthont.
Fenyvesi Marianna

Fenyvesi Marianna

Hívjon bizalommal

+36-20-981-Mutasd!

További hirdetéseim

Ingatlaniroda
GDN Ingatlanhálózat - Főnix
+36 70 365 6991

Küldjön üzenetet

Visszahívást kérek

Hasonló ingatlanok