Eladó Családi ház Ács - Dózsa György utca

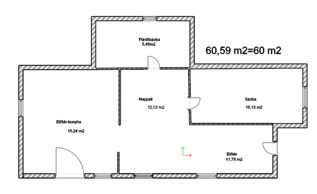
60 m2Alapterület 2 Szoba
37 000 000 Ft Ár
394100Azonosító
További adatok

1288 m2 Telek

Utcai Kilátás

Közepes Állapot

Tégla Szerkezet

Gáz (konvektor) Fűtés

Komfort Komfort

Utcán, közterületen Parkolás

Tömegközlekedés

Nem Amerikai konyhás

Van Kertkapcsolat

1969 Építés éve

Hitelkalkuláció – a részletekért kattintson valamelyik bank logójára!

Eladó hangulatos családi ház Ács csendes utcájában.

Eladásra kínálunk egy közepes állapotú családi házat Ács csendes részén, a Dózsa György utcában.

A 60 m²-es ingatlan két szobával rendelkezik, ideális lehet kisebb családok vagy párok számára.

A felépítmény 1960-as években téglából épült, alappal rendelkezik.
Födém fa, beépítés statikai szakvélemény és megerősítés után lehetséges.
Födém szigetelés üveggyapot hőtükör fóliával.

A ház fűtését gázkonvektor biztosítja, amely gazdaságos megoldást kínál a téli hónapokra.
Lehetőség kályhával füteni a hangulatos este garantált.
Minden helyiségben infrapanel gondoskodik a megfelelő hőmérsékletről a dolgos hétköznapokban.
Melegvízet villanybojler látja el.

Villany- víz hálózatot cserélték 2024-25-ben.
Nyílászárók 2 rétegű fa nyílászárók.
Bejárati ajtót 2025-ben cserélték.
Burkolatokat 2025-ben cserélték.

Külső homlokzat kőporos vakolat-szigetelés nélkül.

Ha egy igazán különleges, meleg hangulatú otthont keresel, ahol a természet közelsége és a nyugalom mindennapos élmény, akkor ezt az ingatlat érdemes megnézned!

Amiért beleszeretsz:

-Egyedi, természetközeli hangulat ,mintha mindig nyaralnál.
-Otthonos, meleg belső terek fa jellegű kialakítással.
-Ideális méret,könnyen fenntartható, praktikus elrendezés.
-Nyugodt, csendes környezet, távol a város zajától.
-Saját kert lehetősége pihenésre, kertészkedésre vagy baráti összejövetelekre

Itt tényleg lelassul az idő: reggeli kávé az udvaron, madárcsicsergés, friss levegő -ez az otthon nemcsak egy ház, hanem életérzés.

Elhelyezkedés:
Ács nyugodt, családias részén, ahol a béke és a természet közelsége garantált, ugyanakkor a szükséges infrastruktúra is elérhető távolságon belül van.

M1 autópálya 10 perc távolságban, iskola, óvoda, boltok, gyógyszertár 2-3 km -en belül.

Ha egy olyan otthonra vágysz, ami kitűnik a megszokottak közül, és valódi meghittséget kínál, ne hagyd ki ezt a lehetőséget!

Érdeklődj bizalommal, és gyere el megnézni személyesen is!
Fülöp Zoltán

Fülöp Zoltán

Hívjon bizalommal

+36-30-333-Mutasd!

További hirdetéseim

Ingatlaniroda
GDN Ingatlanhálózat - Főnix
+36 70 365 6991

Küldjön üzenetet

Visszahívást kérek

Hasonló ingatlanok